A single-level ranch style log home built in 2004 sits on 27.06 acres near Meeker, Colorado. The property borders BLM public land and overlooks the White River Valley. People often look at this type of acreage property or rural property in northwestern Colorado when they want space for daily living combined with access to open land.
Property Details
- Bedrooms: 3
- Bathrooms: 3
- Square Footage: 2,518
- Lot Size: 27.06 Acres
- Property Type: Single Family Residence
- Year Built: 2004
- Condition: Average
Interior and Layout Potential
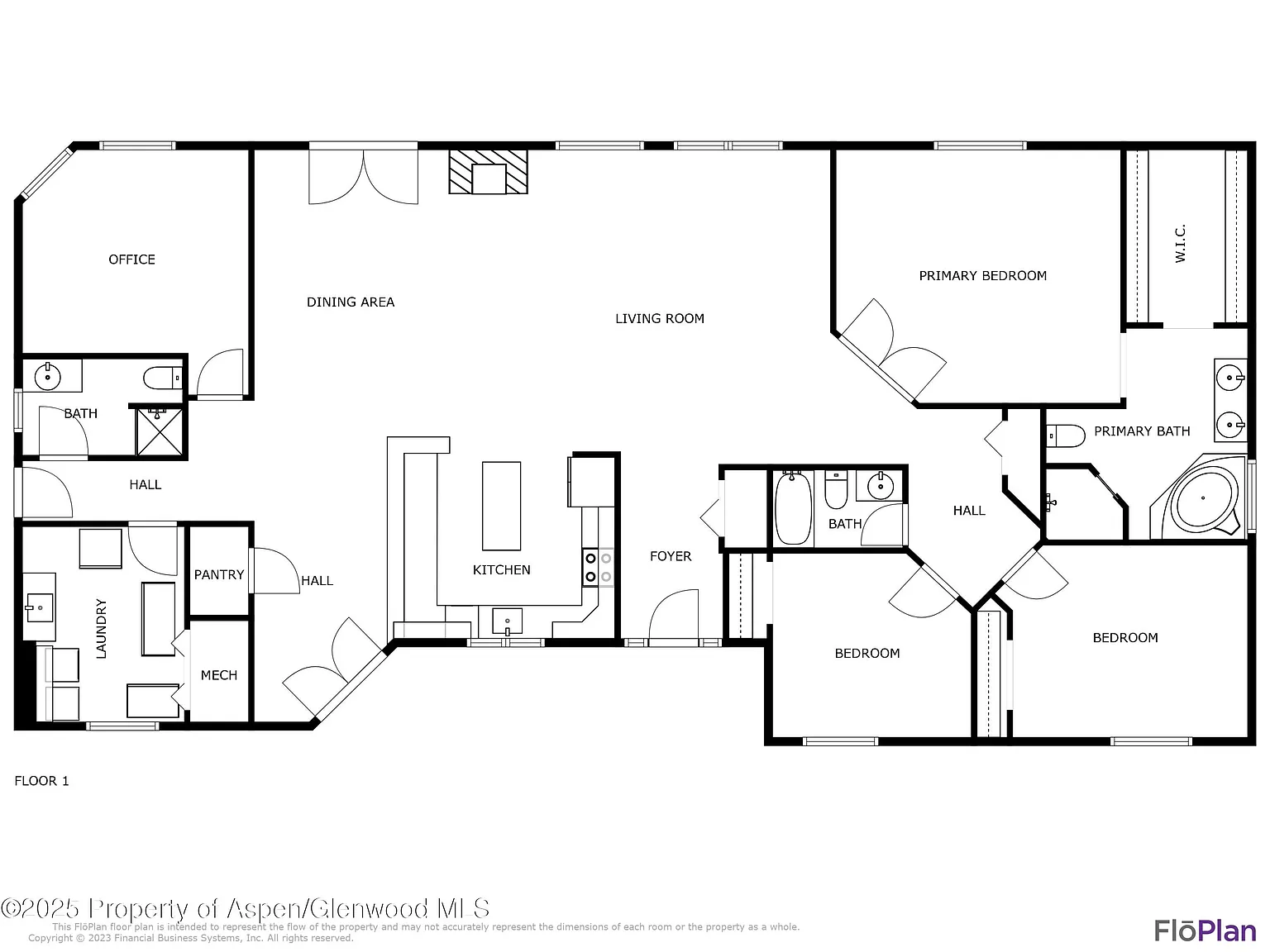
The home features an open layout on the main level. The kitchen, dining room, and living room flow together under a T&G vaulted ceiling with new oak hardwood floors. A gas fireplace sits in the living area. Radiant in-floor heat and hot water systems handle heating, while evaporative cooling manages warmer days. Low emissivity windows help with energy efficiency. A private office supports work-from-home needs with high-speed internet available. The primary suite includes a walk-in closet and full bathroom with walk-in shower and soaking tub. Two additional bedrooms and bathrooms complete the space. A laundry room with mechanical closet adds convenience. Walkout access leads to a covered patio.
All bedrooms and bathrooms sit on the main level. Slab foundation and mixed log, stucco, and frame construction form the structure. Propane serves the property. The single-level design simplifies movement for daily routines or longer stays.
Land and Outdoor Space
The 27.06-acre lot carries farm and ranch residential zoning. It includes varied terrain that borders BLM land managed by the White River Field Office. This adjacency opens direct access to public trails for hiking and mountain biking, such as the Meeker Trails system. The acreage supports basic land management tasks or quiet outdoor time. A covered river-facing patio extends living space for observing the valley. The setup works for those who need room around the home without intensive farming operations. Metal roof and wood siding cover the exterior.
The property sits in an area known for wildlife habitat and proximity to the White River, which flows through the valley and supports local recreation like fishing in the broader region.
Location and Lifestyle Use
Meeker lies in Rio Blanco County in northwestern Colorado. The home sits about 10.5 miles west of town. The White River Valley provides a mix of open meadows, public lands, and access to the Flat Tops Wilderness and White River National Forest. Activities in the area include hiking, fishing, and seasonal outdoor movement. The ranch style country home on acreage property fits full-time residence or periodic use for those interested in rural living. Propane utilities and cistern water system require standard maintenance. The location balances privacy from bordering public land with reasonable access to town services. It suits people exploring property investment or acreage-based lifestyles in Colorado without full off-grid demands.
Final Thoughts
This 2004 ranch style log home on 27.06 acres combines single-level living with surrounding land in the Meeker area. The 3-bedroom, 3-bath layout includes an office, open common spaces, and radiant heat for practical comfort. Bordering BLM land adds options for outdoor access while the acreage allows room for personal use. Overall the rural property presents a straightforward real estate opportunity for country home living in the White River Valley. The setup keeps maintenance focused on existing systems and land basics.
If you’re interested in learning more about this property, please contact the listing agent through the Zillow link provided below the photos.









Listed on Zillow.
Disclaimer:
This website is for informational and entertainment purposes only. We are not a real estate company and do not sell, list, or broker properties. We simply run a blog that shares interesting houses found on other websites.All real estate decisions should be made with licensed professionals. We cannot guarantee that the information here is always accurate or up to date. Use the content at your own discretion.
